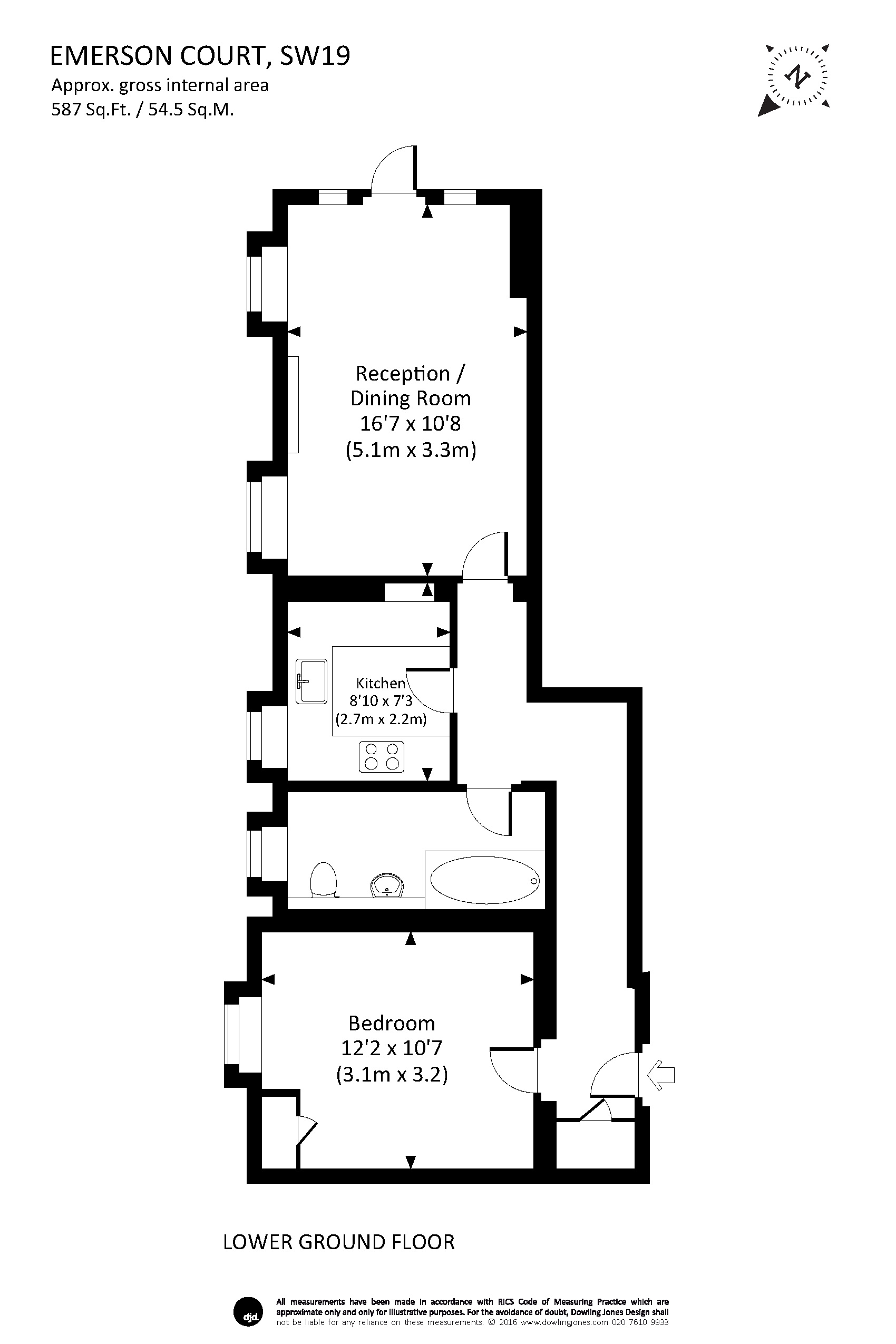
Fantastic one bed apartment in an ideal location on Wimbledon Hill close to the village and town centre. New bathroom, allocated off street parking, upgraded kitchen and well presented throughout. Viewing highly recommended
Fantastic one bed apartment near the village with a large living area and lots of storage space. Fitted kitchen, new bathroom with bath and shower. Off street parking. Would suit a couple or a single professional.